吹き抜けのある家 | VOID HOUSE RENOVATION

高蔵寺ニュータウン住宅流通促進協議会主催 高蔵寺ニュータウン 空き家リノベーションアイデアコンペにて最終選考作品に選ばれました。

空き家対策のリフォーム・リノベーション活用 | 吹き抜けのある家


 

吹き抜けのある住宅へ リフォーム・リノベーションによる空き家対策 | 設計・デザイン


PERSPECTIVE - 内観

住宅リフォーム_パース


住宅リフォーム_パース2



住宅リフォーム_コンセプト





空き家対策のリフォーム・リノベーションのプロポーザル案です。


ポイントは既存の床を一部、吹き抜け空間とすることで、階段室と玄関ホールを一体的に計画し


1階の玄関ホールが明るく開放的になるよう工夫しました。






また、階段室をなくしたことで、2回の渡り廊下が吹き抜け空間に架かるブリッジのように


見えるよう意匠的なコンセプトをもって計画しています。


AXONOMETRY - アクソメ図





住宅リフォーム_アクソメ図
住宅リフォーム_アクソメ図2

玄関ホールと階段ホールが吹き抜けで繋がっているのがわかります。また、2階屋上テラスの出入りに使用していた既存扉を再利用することにより

吹き抜け空間へ光が取り込めるよう既存を生かした計画としています。




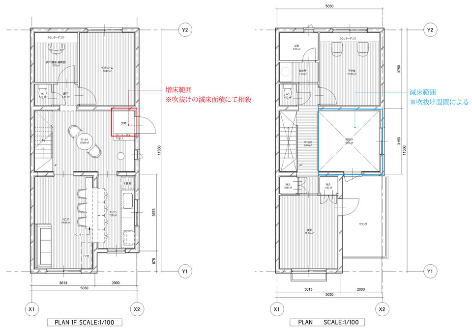
PLAN - 平面図




住宅リフォーム_プラン


住宅リフォーム後の1・2階の平面図です。


青線の囲い部分が吹き抜けに回収し減床した範囲です。

- 空き家のリフォーム・リノベーションに関するお問い合わせはこちら -


Copyright © 2010 kawazoe-architects All Rights Reserved.